Beschrijving
Nieuwbouw: 6 twee-onder-een-kapwoningen op ruime kavels
Aan het rustige Dorpspad in Vogelwaarde verrijzen binnenkort zes stijlvolle twee-onder-een-kapwoningen, gerealiseerd door Danilith. De woningen liggen op royale kavels van 303 m² tot 414 m² en combineren modern wooncomfort met de rust en ruimte van het Zeeuwse buitenleven.
De woningen worden casco opgeleverd, zodat u de volledige vrijheid heeft om de afwerking zelf te bepalen, van keuken en badkamer tot vloeren, oprit en tuin. Zo creëert u een woning die écht bij u past.
Koopsommen vanaf €440.000,- v.o.n. kavel + woning
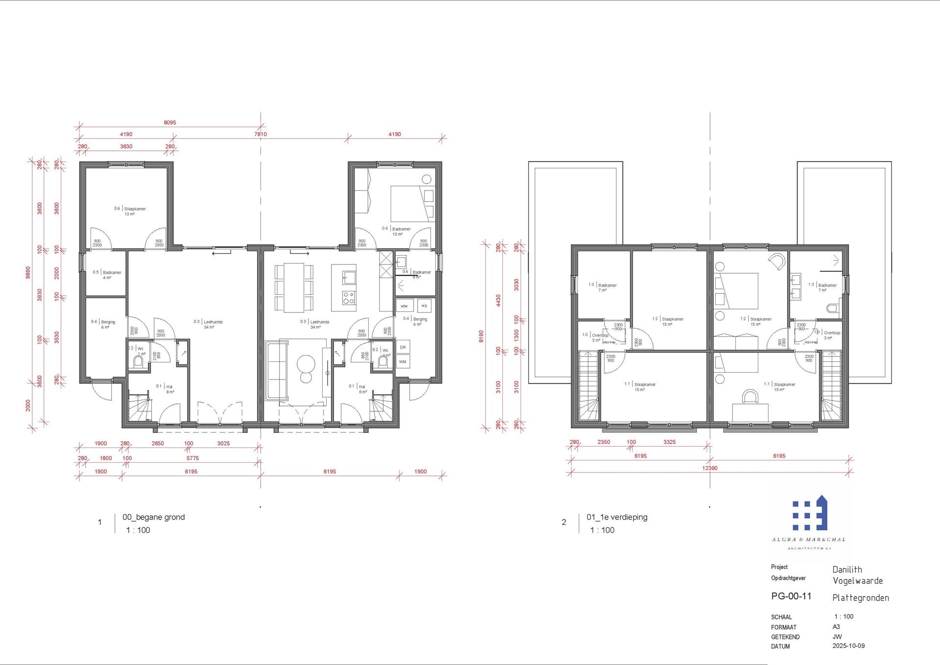
Indeling
De volgende kavels zijn momenteel beschikbaar:
Kavel 1 – 414 m² – Prijs op aanvraag
Kavel 2 – 308 m² – Prijs op aanvraag
Kavel 3 – 308 m² – Prijs op aanvraag
Kavel 4 – 303 m² – €440.000,- v.o.n. kavel + woning
Kavel 6 – 368 m² – Prijs op aanvraag
Kavel 7 – 361 m² – Prijs op aanvraag
Naast deze twee-onder-een-kapwoningen worden er in dit project ook twee vrije kavels aangeboden voor vrijstaande woningen. Deze zijn separaat beschikbaar en bieden de mogelijkheid om zelf een woning te realiseren (voor meer informatie zie onze andere publicatie)
Kavel 5 – 639m² – €235.000,- v.o.n. kavel
Kavel 8 – 613 m² – Prijs op aanvraag
Kijk voor actuele beschikbaarheid op de plattegrond.
Bijzonderheden
Het Dorpspad is een heerlijke plek om te wonen: rustig, groen en met vrij uitzicht over de omgeving. U woont hier aan de rand van het dorp, maar met winkels, school en sportvoorzieningen binnen handbereik. Ook Hulst, Terneuzen en de Belgische grens zijn vlot bereikbaar.
Interesse? Neem gerust contact op
Wilt u meer weten over de mogelijkheden aan het Dorpspad? Wij vertellen u graag alles over de mogelijkheden. Maak een afspraak, dan nemen we samen de mogelijkheden door.
We kijken ernaar uit u te verwelkomen!