Beschrijving
Op slechts een steenworp afstand van het bruisende centrum van Sluis staat deze schitterende, volledig gerenoveerde eengezinswoning. Met een moderne, frisse uitstraling en een hoog afwerkingsniveau is dit huis ideaal voor gezinnen of starters op de woningmarkt.
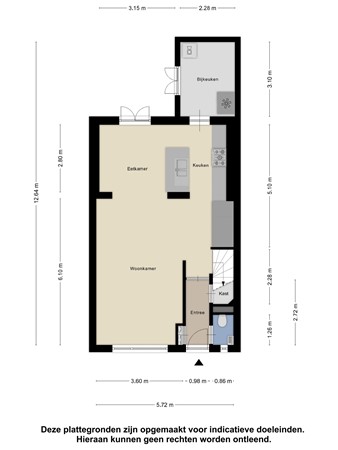
Indeling
Bij binnenkomst in de hal met toilet en trapopgang valt direct de lichte en strakke afwerking op. De woonkamer aan de voorzijde is heerlijk licht dankzij de grote raampartij en loopt naadloos over in de eetkamer en open keuken, waardoor een ruim en open leefgedeelte ontstaat.
De moderne keuken vormt het hart van de woning en is uitgevoerd met een centraal eiland en diverse inbouwapparatuur. De lichtstraat boven de keuken zorgt voor een prachtige natuurlijke lichtinval en versterkt het ruimtelijke gevoel. Aansluitend bevindt zich de praktische bijkeuken met extra bergruimte en directe toegang tot de achtertuin.
Eerste verdieping
Op de eerste verdieping bevinden zich drie slaapkamers, twee ruime kamers en een derde kamer die momenteel is ingericht als inloopkast. De moderne badkamer is compleet ingericht met een inloopdouche, wastafel en toilet.
Tweede verdieping
Via een vlizo trap bereikt u de zolderverdieping, een fijne ruimte voor het opbergen van spullen.
Tuin
De achtertuin is aangelegd met een ruim terras op verschillende niveaus, hier kunt u heerlijk genieten van de fijne zomerdagen. U kunt via de poort langs achteren weg.
Bijzonderheden
Gelegen op een fijne en centrale locatie in Sluis, met scholen, winkels en sportvoorzieningen op korte afstand. Het gezellige centrum met diverse boetieks, restaurants en terrassen bevindt zich op loop- en fietsafstand. Daarnaast zijn het buitengebied en de Zeeuwse kust binnen enkele minuten bereikbaar, wat zorgt voor een perfecte balans tussen levendigheid en rust.
* Vrije parking voor de deur
* Moderne open keuken met eiland
* Lichtstraat voor extra daglicht
* 3 slaapkamers + bergzolder
* Moderne badkamer
* Ruime en gezellige tuin
* Centrale ligging
Bent u op zoek naar een instapklare woning met een moderne uitstraling en een ideale ligging in Sluis? Neem dan snel contact met ons op om deze prachtige woning te bezoeken!