Beschrijving
Op een riant perceel van maar liefst 14.382 m² ligt deze charmante, vrijstaande woning uit 1920, een droomplek voor liefhebbers van rust, ruimte en veelzijdigheid. De woning is grotendeels verduurzaamd en biedt met een woonoppervlakte van circa 140 m² en tal van moderne voorzieningen alles voor een comfortabel leven in het buitengebied.
Indeling
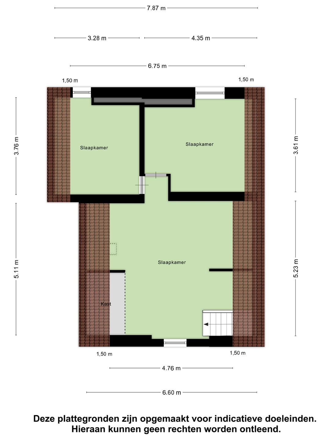
Met drie slaapkamers boven en een slaapkamer een badkamer op de begane grond is gelijkvloers wonen hier moeiteloos mogelijk. De badkamer is uitgerust met een douche, toilet en wastafel. De sfeervolle woonkamer met prachtig polderuitzicht is compleet met een gezellige houtkachel. Een handige kelder biedt extra opbergruimte, ideaal voor bijvoorbeeld het bewaren van wijn of voorraad. Daarnaast beschikt de woning over een praktische bijkeuken met wasmachineaansluiting, waardoor het huishouden efficiënt kan worden geregeld. De keuken is een genot voor kookliefhebbers, volledig ingericht met hoogwaardige Siemens-apparatuur.
Duurzaamheid staat centraal bij deze woning. In 2023 zijn 18 zonnepanelen geïnstalleerd, en de nieuwe CV-ketel uit hetzelfde jaar zorgt voor energiezuinig comfort. De woning is grotendeels voorzien van dubbel glas en vloerisolatie, wat bijdraagt aan een aangenaam binnenklimaat en lage energiekosten. Ook is de woning voorzien van dakisolatie. Bovendien is er snel glasvezel internet aanwezig, ideaal voor thuiswerkers of streaming.
Bijzonderheden
Bijzonderheden:
- Schuur in 2020 van 343 m2 voorzien van elektra
- Nieuwe cv ketel 2023
- Zonnepanelen 18 stuks in 2023 geplaatst
- Perceelgrootte 14.382 m2
- Schoongrond verklaring aanwezig!
- Septic tank aanwezig
- Gastank (huur)
- Klein stukje wei met agrarische bestemming
De blikvanger van het erf is de royale schuur van 343 m², in 2020 gebouwd en voorzien van elektra. Deze ruimte biedt ontelbare mogelijkheden: van werkplaats of opslag tot hobbyruimte. Een deel van het perceel heeft een agrarische bestemming, ideaal voor het houden van kleinvee of het aanleggen van een weide, terwijl het grootste gedeelte is bestemd voor wonen – inclusief de schuur. Perfect voor wie buitenactiviteiten hoog in het vaandel heeft staan.
De woning is uitgerust met een gastank (huur) en een septic tank.
Deze sfeervolle woning combineert het beste van twee werelden: de rust en ruimte van het buitengebied, met het comfort van moderne voorzieningen en de luxe van een grote, multifunctionele schuur. Of u nu droomt van een kleine boerderij, een atelier of gewoon een leven in de natuur, deze woning biedt eindeloze mogelijkheden.
Maak snel een afspraak voor een bezichtiging en ontdek de vele mogelijkheden van deze karaktervolle woning in Retranchement!