Beschrijving
Exclusief wonen in de duinen met exceptionele hotelservice
In Cadzand-Bad staat reeds jaar en dag ‘De Blanke Top’ bekend als hoogste duin en meest zichtbare baken van de streek. Het is op deze befaamde duinengordel, aan de prachtige kust van Zeeuws-Vlaanderen, dat het exclusieve project ‘De Blanke Top – The Residence’ is verrezen. Het appartementencomplex is met haar stijlvolle architectuur in perfecte harmonie met het beschermde duinlandschap van Cadzand-Bad. Door de unieke samenwerking met het aangrenzende hotel "De Blanke Top" beschikt je als resident over een uitgebreid aanbod van hoteldiensten. Met meer dan 950m2 oppervlakte en "one-of-a-kind" serviceniveau behoren deze wellness faciliteiten tot de absolute topklasse, synoniem voor grenzeloos genieten in een exclusieve en stijlvolle context.
Cadzand-Bad heeft zich de laatste jaren ontpopt tot een mooie, kwaliteitsvolle badplaats, maar rustiger dan de drukke badplaatsen langs de Belgische kust. Natuur, rust en frisse lucht zijn hier alom aanwezig. Maar u ontdekt er ook een rijke gastronomische cultuur waarbij verse en lokale producten de basis vormen van dit genot.
Indeling
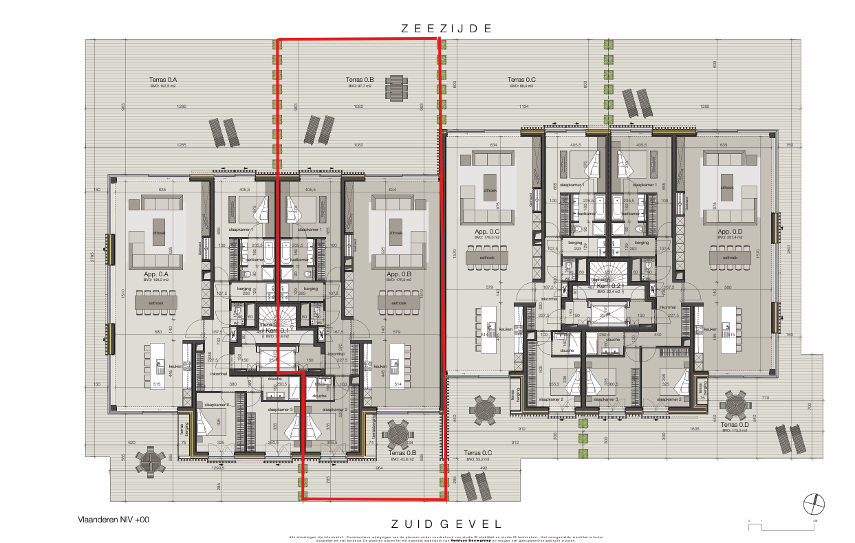
Het appartement is gelegen in de exclusieve toren Vlaanderen, één van de twee markante residenties binnen dit bijzondere project. De eerste toren, Vlaanderen, grenst aan de zijde van het hotel.
Beide residenties kenmerken zich door een doordachte en hoogwaardige architectuur, waarbij de inkomhallen subtiel zijn geïntegreerd op niveau -2, midden in de duingordel. Hiermee is bewust gekozen voor een elegante, ingetogen entree in plaats van een traditionele bovengrondse toegang. Deze horizontale inpassing is eveneens doorgevoerd in de ondergrondse parkeergarage, waardoor bewoners zich moeiteloos door het complex bewegen zonder het duinlandschap te hoeven doorkruisen. Vanuit de entree bereikt u via een lift met individuele toegangscontrole of het trappenhuis uw appartement.
Het appartement zelf bevindt zich op de begane grond, wat in dit unieke ontwerp betekent dat u direct op duinniveau woont aan de zeezijde. Een uitzonderlijke woonbeleving, waarbij u letterlijk vanuit uw woning het strand oploopt.
Dit schitterende appartement biedt een panoramisch uitzicht over zee en strand, gecombineerd met vergezichten over het karakteristieke Zeeuwse polderlandschap. De royale woonkamer met luxe gashaard en de op maat vervaardigde keuken, uitgerust met hoogwaardige inbouwapparatuur, vormen samen een stijlvolle en comfortabele leefruimte van hoog niveau. Via de indrukwekkende Sky-Frame schuifpuien heeft u toegang tot twee ruime terrassen, gelegen aan zowel de zee- als landzijde, waardoor u op elk moment van de dag optimaal geniet van zon en uitzicht.
Het appartement beschikt over twee volwaardige slaapkamers en twee luxe afgewerkte badkamers, beide voorzien van maatwerk en hoogwaardige materialen.
De aluminium schuifpuien van het gerenommeerde Zwitserse merk Sky-Frame vormen een essentieel onderdeel van de architectuur. Dankzij de uiterst slanke profielen en naadloze integratie ontstaat een unieke ‘inside-outside living’-beleving, waarbij binnen en buiten op elegante wijze in elkaar overlopen en het natuurlijke licht maximaal wordt benut.
De royale leefruimte, met rondom raampartijen en een indrukwekkend uitzicht, biedt een ongeëvenaard gevoel van ruimte en vrijheid. Overdag baadt het appartement in het zonlicht, terwijl in de avond zorgvuldig gekozen verlichting en de sfeervolle haard zorgen voor een warme en uitnodigende ambiance. Vanuit de living loopt u direct de duinen in, met de zee letterlijk aan uw voeten.
Balkon
Het appartement beschikt over 2 terrassen; een aan de landzijde gericht op het zuiden en een aan de zeezijde gericht op het noorden.
Bijzonderheden
Pluspunten:
* Ondergrondse toegang naar Hotel de Blanke Top voor gebruik van welness
*Ontworpen door Govaert & Vanhoutte Architects
*Unieke ligging direct in de duinen, met directe toegang tot strand en zee
*Appartement op duinniveau (begane grond aan zeezijde)
*Twee royale terrassen aan zee- en landzijde
*Luxe afwerking met maatwerk en hoogwaardige materialen
*Royale woonkamer met gashaard en veel lichtinval
*Ondergrondse parkeergarage en geïntegreerde entree in de duinen
Het appartement wordt aangeboden met 1 berging, 1 parkeerplaatsen in de parkeerkelder. Tevens is er een mogelijkheid tot overname van een enkele en dubbele garagebox.