Beschrijving
Welkom bij de charmante Tramhuisjes in Draaibrug. Aan de rand van Aardenburg staat deze instapklare woning aan de Draaibrug 67, volledig gerenoveerd met behoud van karakteristieke details. Het huis combineert een sfeervol verleden met het comfort van nu: een energielabel A, volledig gerenoveerd en betaalbaar wonen op een rustige plek. Ideaal voor starters of voor wie op zoek is naar een compacte, onderhoudsvriendelijke woning met een uniek verhaal.
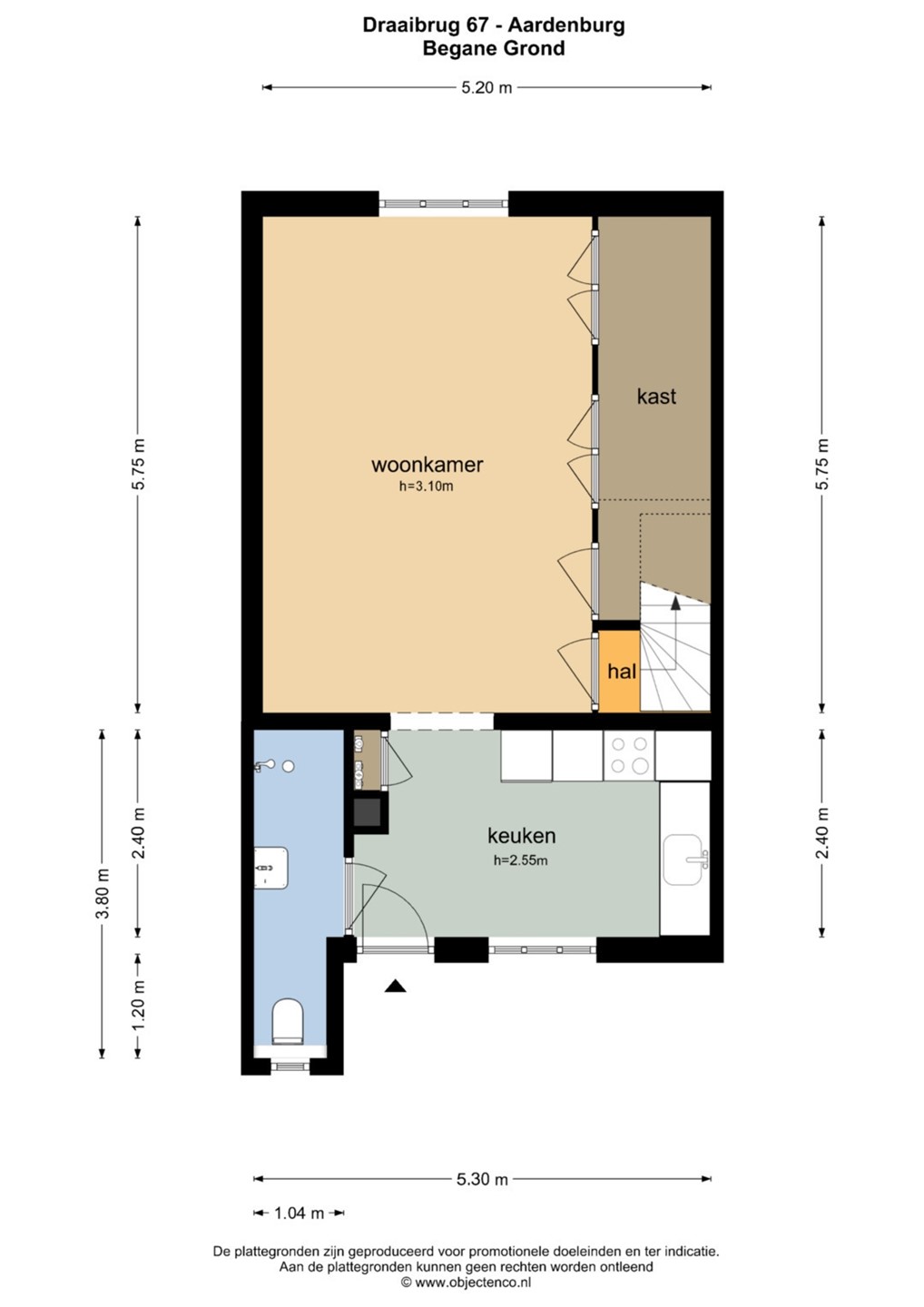
Indeling
Op de begane grond treft u een gezellige woonkamer met veel lichtinval. De ruimte sluit naadloos aan op de keuken, die modern en praktisch is ingericht en toegang geeft tot de tuin. Op deze verdieping vindt u ook de badkamer, uitgerust met douche, wastafel en toilet.
Eerste verdieping
De eerste verdieping is ingericht als een ruime slaapkamer met dakramen. Dankzij de slimme renovatie is dit een comfortabele en lichte ruimte, waar voldoende plek is voor een tweepersoonsbed en kastruimte.
Tuin
Voor de woning ligt een gezellige buitenruimte, perfect voor een zitje en/of een buitentafel. Hier kunt u in alle rust genieten van de zon en het buitenleven, zonder dat het veel onderhoud vraagt.
Bijzonderheden
* Volledig gerenoveerde woning met energielabel A
* Karakteristiek Tramhuisje met moderne afwerking
* Instapklaar: direct te betrekken
* Perfecte starterswoning
* Betaalbaar wonen op een rustige locatie vlakbij Oostburg en Sluis
Bent u op zoek naar een betaalbare, instapklare woning met karakter en comfort? Dan is dit Tramhuisje aan de Draaibrug 67 in Aardenburg de kans voor u.
Neem gerust contact met ons op voor meer informatie of om een bezichtiging in te plannen, wij laten u dit bijzondere huis graag zien.