Beschrijving
33 MODERNE APPARTEMENTEN
De appartementen zijn zeer centraal gelegen op een bruisende locatie in Sluis. Ze zijn zeer energiezuinig.
MODERN
Een frisse en hedendaagse uitstraling, goed doordachte ruimtes en van vele moderne gemakken voorzien. Een tijdloze architectuur met witgekaleide muren en onderhoudsarme materialen.
ENERGIE
Gebruik van een warmtepomp, zonnepanelen en hoge isolatiewaarden maken Woolridge 2 bijna energieneutraal. Dat scheelt flink in de energierekening!
DIVERS
Een divers aantal appartementen met uiteenlopende oppervlaktes. Speciaal gebouwd voor wie een fijne plek zoekt voor zichzelf, voor jonge koppels die beginnen aan hun toekomst, maar ook voor wie dat te grote huis liever inruilt voor een interessante plek in een levendig stadje.
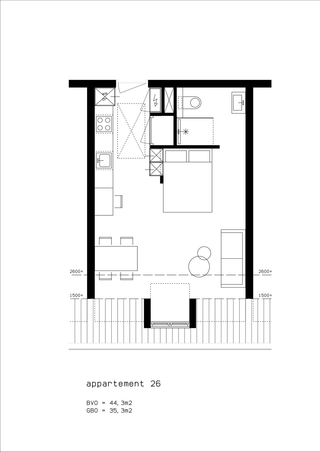
Indeling
Bij binnenkomst sta je oog in oog met de moderne keuken, die is uitgerust met hedendaagse apparatuur, zoals een vaatwasser, combimagnetron, koelkast en inductiekookplaat met afzuigkap, waardoor koken een plezier wordt. Door te kiezen voor een zwarte mengkraan en spoelbak krijgt de keuken een hotelwaardige uitstraling. Naast het keukenblok is er een kast voorzien voor plaatsing van witgoed.
Tegenover de keuken is een smaakvol ingerichte badkamer, waar zwarte elementen de boventoon voeren. Bovendien is de badkamer voorzien van alle gemakken zoals een inloopdouche, zwevend toilet, elektrische handdoekradiator, wastafelmeubel met waskom en spiegel.
De verdere inrichting kan geheel naar eigen inzicht en smaak worden uitgevoerd. Er zijn diverse opties waar gebruik van gemaakt kan worden.
Dit knusse appartement ligt op de tweede verdieping aan de Lange Wolstraat in Sluis.
Neem vandaag nog contact met ons op om de mogelijkheden te bespreken. Wensen en dromen zijn er om gerealiseerd te worden. Wij helpen je daar graag bij!
Bijzonderheden
- Nieuwbouwproject geschikt voor jong tot oud
- Energiezuinig (volledig gasloos)
- Zonnepanelen individueel per appartement
- Volledig ingerichte keuken en badkamer
- Vele opties voor verdere personalisatie
- Lift aanwezig
- Centrale ligging in het centrum van Sluis
- Voorzieningen zoals apotheek, supermarkt, huisartsenpraktijk, tandarts, restaurants en winkels op loopafstand
- Openbaar vervoer op loopafstand