Beschrijving
Villa Belleville – Exclusief wonen aan de kust
Op zoek naar een tweede thuis aan zee, omgeven door rust, luxe en natuur? Maak kennis met Villa Belleville: een uniek woonproject op een van de mooiste locaties van de Nederlandse kust. Twee stijlvolle villa’s, verscholen in de duinen van Cadzand, op slechts 50 meter van het strand. Hier komen comfort, architectuur en natuurschoon op harmonieuze wijze samen.
De residentie bestaat uit exclusieve appartementen met 2 of 3 slaapkamers – elk met eigen badkamer – én royale penthouses met optioneel dakterras. Een parkeerkelder met extra ruime parkeerplaatsen en bergingen maakt het geheel compleet.
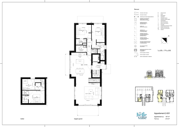
Met een woonoppervlakte van maar liefst 142 m², drie slaapkamers met elk een eigen badkamer, en een zonnige tuin van 213 m² is dit appartement een zeldzaam aanbod aan de kust.
Indeling
Via de centrale inkomhal betreedt u het appartement. De ruime woonkamer verwelkomt u met een overvloed aan daglicht dankzij grote raampartijen aan drie zijden (oost, zuid en west). De dubbele schuifpui aan de westzijde verbindt de leefruimte moeiteloos met het aangrenzende terras en de riante tuin – perfect voor wie binnen en buiten wil laten samensmelten.
De open keuken met centraal spoeleiland is modern en praktisch ingedeeld en voorzien van volledig geïntegreerde inbouwapparatuur. Zowel de keuken als de badkamers kunnen nog volledig naar eigen smaak worden ingericht.
Op de begane grond bevinden zich twee comfortabele slaapkamers, elk met openslaande deuren naar de tuin en een eigen badkamer. De hoofdslaapkamer beschikt over een badkamer ensuite met inloopdouche, dubbele wastafel en toilet. De tweede badkamer is voorzien van een inloopdouche en enkele wastafel. Een apart gastentoilet met fonteintje is toegankelijk vanuit de hal.
Souterrain
Via een trap in de woonkamer bereikt u het souterrain, waar zich een derde, zeer ruime slaapkamer bevindt. Ook hier is een badkamer ensuite aanwezig, voorzien van inloopdouche, wastafel en een extra (derde) toilet. Aangrenzend vindt u twee praktische bergingen, ideaal voor het opbergen van huishoudelijke spullen en witgoed.
Bijzonderheden
+ Woonoppervlakte: ca. 142 m²
+ Privétuin van ca. 213 m² aan de voet van de duinen
+ Drie slaapkamers en drie badkamers (alle ensuite)
+ Terrassen toegankelijk vanuit alle slaapkamers én de woonkamer
+ Twee inpandige bergingen