Beschrijving

Charmante vrijstaande woning met karakter, ruimte en een landelijke ligging

Tussen Sluis en Aardenburg, midden in het uitgestrekte polderlandschap, ligt deze charmante vrijstaande woning aan de Noorderbruggeweg 4 in Sluis. De woning staat op een ruim perceel en ademt karakter en authenticiteit. Hier woont u in alle rust, omringd door groen en ruimte, terwijl de voorzieningen van Sluis en Aardenburg op korte afstand bereikbaar zijn. Daarnaast bevindt u zich binnen circa 25 minuten in het historische Brugge en staat u binnen 15 minuten in het prachtige Cadzand en aan de Zeeuwse kust.

Deze woning draagt bovendien een bijzonder verhaal met zich mee. Op deze plek bevond zich ooit de kerk van Heille, wat het huis een unieke historische gelaagdheid geeft. Niet voor niets wordt dit type woning ook wel omschreven als een “Old Church House” – een plek waar verleden en heden op een sfeervolle manier samenkomen.

De woning beschikt over diverse karakteristieke elementen en biedt volop mogelijkheden voor wie op zoek is naar een sfeervolle woning met potentie. De verzorgde tuin rondom en de meerdere bijgebouwen maken het geheel compleet.

De woning is gesitueerd op een perceel in erfpacht

Indeling

Via de entree komt u in de hal, die toegang geeft tot verschillende vertrekken op de begane grond. Vanuit de hal bereikt u de eetkamer en de badkamer, die is voorzien van een inloopdouche, ligbad en vaste wastafel. Ook de keuken is toegankelijk via de hal.

De begane grond beschikt daarnaast over een gezellige woonkamer en een extra kamer die uitstekend kan dienen als kantoor, hobbyruimte of speelkamer. Tevens is er een opkamer aanwezig die nu fungeert als slaapkamer, wat bijdraagt aan het authentieke karakter van de woning.

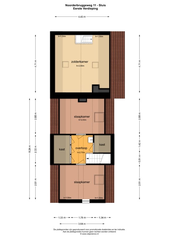
Eerste verdieping

Op de eerste verdieping bevinden zich een overloop en twee slaapkamers. De verdieping biedt een praktische indeling en voldoende ruimte voor een gezin of voor het creëren van extra werk- of logeerkamers. Daarnaast heeft u via de eetkamer toegang tot een zolderkamer die tevens ingedeeld kan worden als slaapkamer of hobbykamer.

Tuin

De tuin is verzorgd aangelegd, ligt op het westen en loopt rondom de woning. Hierdoor kunt u op verschillende plekken van de zon genieten en heeft u volop ruimte om buiten te leven.

Op het perceel bevinden zich daarnaast diverse schuurtjes die geschikt zijn voor opslag, hobby of werkruimte. De oprit biedt voldoende ruimte om meerdere auto’s op eigen terrein te parkeren.

Bijzonderheden

Bijzonderheden
+ Woning uit 1895 zónder monumentale status
+ Ruim perceel in de polder tussen Sluis en Aardenburg
+ 4 slaapkamers
+ Levensloopbestendig wonen mogelijk
+ Verzorgde tuin rondom gelegen op het westen
+ De woning is gesitueerd op een perceel in erfpacht

Bent u op zoek naar een charmante vrijstaande woning met karakter, ruimte en een landelijke ligging? Neem dan contact met ons op voor een bezichtiging van Noorderbruggeweg 4 in Sluis.

Kenmerken