Beschrijving

33 MODERNE APPARTEMENTEN

De  appartementen zijn zeer centraal gelegen op een bruisende locatie in Sluis. Ze zijn zeer energiezuinig.

MODERN
Een frisse en hedendaagse uitstraling, goed doordachte ruimtes en van vele moderne gemakken voorzien. Een tijdloze architectuur met witgekaleide muren en onderhoudsarme materialen.

ENERGIE
Gebruik van een warmtepomp, zonnepanelen en hoge isolatiewaarden maken Woolridge 2 bijna energieneutraal. Dat scheelt flink in de energierekening!

DIVERS
Een divers aantal appartementen met uiteenlopende oppervlaktes. Speciaal gebouwd voor wie een fijne plek zoekt voor zichzelf, voor jonge koppels die beginnen aan hun toekomst, maar ook voor wie dat te grote huis liever inruilt voor een interessante plek in een levendig stadje.

Indeling

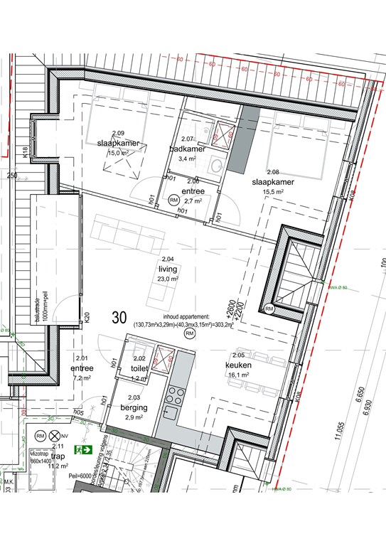
Bij binnenkomst in de entree heb je toegang tot het toilet, de berging en de woonkamer met open keuken. Vanuit de woonkamer is er een aparte hal naar de twee slaapkamers en de badkamer. Aan de achterkant van het appartementengebouw bevindt zich het terras bij dit appartement. 

De keuken en badkamer zijn voorzien van zwarte elementen wat het geheel een luxe uitstraling geeft. In de keuken is hedendaagse apparatuur aanwezig.

Bijzonderheden

- Nieuwbouwproject geschikt voor jong tot oud
- Energiezuinig (volledig gasloos)
- Zonnepanelen individueel per appartement
- Volledig ingerichte keuken en badkamer
- Lift aanwezig
- Centrale ligging in het centrum van Sluis
- Voorzieningen zoals apotheek, supermarkt, huisartsenpraktijk, tandarts, restaurants en winkels op loopafstand
- Openbaar vervoer op loopafstand

Kenmerken