Beschrijving

Unieke Kans:  NOG 1 BESCHIKBAAR 

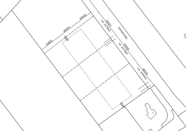
3 excellente bouwkavels zonder bouwverplichting beschikbaar voor zowel permanente als recreatieve bewoning

Gelegen aan de schilderachtige Kanaalweg in Retranchement op steenworpafstand van het bekende natuurgebied 't Zwin en Knokke, bieden wij exclusieve bouwkavels te koop aan. Deze kavels zijn perfect voor diegenen die op zoek zijn naar rust, ruimte en een directe verbinding met de natuur, maar ook faciliteiten binnen handbereik willen hebben.

Realiseer nu uw droomwoning met vrij uitzicht over de polder van Retranchement. De afmeting van het kavel bedraagt ca 2.268 m2 . U kunt conform de onderstaande bebouwingsmogelijkheden uw woning realiseren:

Maximale inhoud woning: 1.000 m³
Goothoogte: 4,5 meter
Totale maximale hoogte: 10 meter
Bijgebouw: maximaal 90 m², goothoogte van 3,5 meter, totale hoogte van 8 meter

Landschappelijke Inpassing
De kavels zijn gelegen in een prachtig aangelegd natuurgebied dat niet openbaar toegankelijk is, maar wel zorgt voor een serene en natuurlijke omgeving. Het landschappelijke inrichtingsplan voorziet in diverse natuurlijke elementen zoals:

Rijen knotwilgen aan de westzijde, markeren de overgang naar het agrarische landschap. Natuurlijke poelen verbonden door een laagte,  die een dynamisch en seizoensgebonden landschap bieden. Bramenstruiken aan de noordzijde van de poelen, ideaal voor de boomkikker en kleine groepjes bomen die schaduw- en schuilplekken voor vogels en andere kleine dieren bieden.

De landschappelijke elementen zijn zorgvuldig gekozen om het gebied visueel aantrekkelijk en ecologisch waardevol te maken, met seizoensgebonden dynamiek die zorgt voor een levendig en afwisselend landschap.

Contactinformatie
Voor meer informatie of een bezichtiging van deze unieke kavels, neem contact op met ons kantoor. Dit is uw kans om te bouwen in een van de meest pittoreske en serene omgevingen van Retranchement.

Deze kavels bieden een zeldzame combinatie van landelijke rust en moderne voorzieningen, ideaal voor natuurliefhebbers en diegenen die op zoek zijn naar een hoogwaardige woonlocatie. Mis deze unieke kans niet!

Prijzen zijn exclusief BTW en vrij op naam.

Kenmerken