Beschrijving
Charmante tussenwoning met zonnig dakterras in het hart van IJzendijke!
Deze sfeervolle en verrassend ruime woning met een unieke ligging in het historische centrum van IJzendijke verrast u met zijn gezellig indeling. Deze prachtige tussenwoning combineert karakter en comfort, met als bijzonder kenmerk een zonnig dakterras dat uitnodigt tot genieten.
Indeling
Via de knusse hal met meterkast komt u in een sfeervolle woonkamer. In de woonkamer is tevens een toegang voorzien tot de ruime kelder. De ruime keuken is voorzien van een dakkoepel en heeft een gezellig barretje naar de woonkamer toe. Verder loopt u via de keuken naar een praktische bijkeuken met witgoedaansluiting en een separaat toilet.
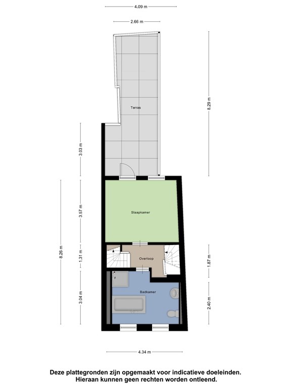
Eerste verdieping
Op de eerste verdieping vindt u een royale slaapkamer met inbouwkast en toegang tot het westelijk gelegen dakterras. De ruime badkamer is voorzien van een ligbad, toilet, douche en wastafel.
Tweede verdieping
Op de tweede verdieping is er ruimte om twee ruime slaapkamers te maken waarvan beiden voorzien van een dakkapel. Tevens is de cv-ketel weggewerkt in een praktische kast.
Bijzonderheden
+ Gezellige woonkamer met sierschouw.
+ Het royale dakterras op het westen is dé plek om te ontspannen en te genieten van buiten.
+ 3 slaapkamers
+ De woning is voorzien van dubbel glas, kunststof en hardhouten kozijnen.
+ Rolluiken aanwezig bij de slaapkamers.
+ Verwarming via een HR-combiketel (Remeha, huur 2024)
+ Centrumbestemming
Beleef het zelf!
Een woning met deze charme en veelzijdigheid moet je voelen en beleven. Kom langs en laat je verrassen door de ruimte en sfeer van Koninginnestraat 12. Maak vandaag nog een afspraak voor een bezichtiging!
Plattegronden
167922485_1531157_konin_begane_grond_first_design_20250117_79368e.jpg
167922485_1531157_konin_eerste_verdiepi_first_design_20250117_138d80.jpg
167922485_1531157_konin_tweede_verdiepi_first_design_20250117_f7bf6c.jpg
167922485_1531157_konin_kelder_first_design_20250117_884753.jpg