Beschrijving

Vakantie vieren in alle rust, met het strand op loopafstand en een zwembad in je eigen tuin? Dat kan aan de Vlamingpolderweg 18-001 in Cadzand! Deze ruime woning, gelegen in een prachtige omgeving, biedt alles voor wie op zoek is naar comfort en ontspanning.

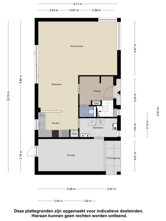
Indeling

Bij binnenkomst valt direct de ruime en lichte woonkamer op. Dankzij de grote raampartijen is er veel natuurlijk licht en heb je een mooi uitzicht op de tuin. De open indeling geeft een ruimtelijk gevoel, terwijl de keuken op een speelse manier wordt afgescheiden met een halfhoog muurtje. Dit creëert een gezellige sfeer waarin koken en leven samenkomen.

Naast de keuken bevindt zich een praktische bijkeuken, ideaal voor extra opslag of het plaatsen van witgoed. Ook beschikt de woning over een garage, perfect voor het stallen van fietsen, een auto of strandspullen.

Eerste verdieping

De eerste verdieping biedt volop ruimte met maar liefst vier slaapkamers. Of je nu een groot gezin hebt, graag gasten ontvangt of een werkkamer nodig hebt, hier heb je alle mogelijkheden. De twee badkamers zorgen voor extra comfort en luxe, zodat iedereen in huis over voldoende privacy beschikt.

Tuin

De tuin is een heerlijke plek om te ontspannen. Mooi aangelegd en met een ideale ligging op het zuidwesten geniet je hier de hele dag door van de zon. Het verwarmde zwembad zorgt voor extra luxe en verkoeling op warme dagen – een echt vakantiegevoel in je eigen achtertuin!

Bijzonderheden

Cadzand is een geliefde kustplaats met uitgestrekte stranden, sfeervolle duinen en een ontspannen maritieme sfeer. De woning ligt op een toplocatie, direct tegenover de dijk. Zodra je de dijk oversteekt, sta je op het brede zandstrand, waar je eindeloos kunt wandelen, zwemmen of genieten van een drankje bij een van de strandpaviljoens.

Wil jij deze unieke woning zelf ervaren? Neem contact met ons op voor een bezichtiging!

Kenmerken