Beschrijving

Deze instapklare hoekwoning is recent volledig en met veel zorg verbouwd en verkeert in uitstekende staat. De woning is stijlvol afgewerkt en direct te betrekken, waardoor u hier zonder klussen kunt verhuizen en meteen kunt genieten van uw nieuwe thuis.

De ligging is bijzonder prettig: in een rustige woonwijk met alle dagelijkse voorzieningen binnen handbereik. Zo bevindt de Jumbo supermarkt zich op loopafstand, net als andere winkels en voorzieningen. Ook het centrum van Breskens en de kust zijn eenvoudig bereikbaar.

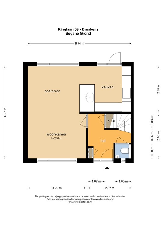
Indeling

U komt de woning binnen via de hal, die toegang geeft tot het toilet, de trap naar de eerste verdieping en de woonkamer. De begane grond beschikt over een lichte en gezellige woonkamer met aangrenzende eetkamer en een moderne keuken. De keuken is vernieuwd in 2023 en van alle gemakken voorzien. Op de begane grond is vloerverwarming aanwezig, wat zorgt voor een aangename sfeer in huis. Daarnaast is er een voorbereiding getroffen voor een pelletkachel.

Eerste verdieping

Op de eerste verdieping bevinden zich drie fijne slaapkamers en een ruime badkamer. De badkamer is voorzien van elektrische vloerverwarming, douche, toilet, wastafel en aansluiting voor wasmachine en droger.

Tweede verdieping

Via een vlizotrap is de zolder bereikbaar. Deze ruimte is ideaal te gebruiken als praktische opbergruimte.

Tuin

De woning beschikt over ruime voortuin en een eigen oprit met parkeergelegenheid voor twee auto’s.

De achtertuin is verzorgd aangelegd en biedt een fijne combinatie van groen en terrassen, waardoor er altijd een prettige plek is om buiten te zitten. De tuin is zowel via de woning als via de zij-ingang bereikbaar.

In de tuin bevindt zich een vrijstaande berging, ideaal voor het stallen van fietsen, het opbergen van tuingereedschap en andere spullen. 
Een heerlijke buitenruimte waar u in alle rust kunt ontspannen en genieten van het buitenleven.

Bijzonderheden

* Instapklare, recent volledig verbouwde hoekwoning
* Stijlvolle en verzorgde afwerking
* Vloerverwarming (water) op de begane grond en elektrische vloerverwarming in de badkamer
* Zonnepanelen aanwezig
* Voorbereiding voor pelletkachel
* Drie slaapkamers
* Eigen oprit voor twee auto’s
* Voorzieningen en supermarkt op loopafstand

Ringlaan 39 in Breskens is een woning waar comfort, ruimte en afwerking perfect samenkomen. Dankzij de recente verbouwing, de stijlvolle inrichting en de fijne ligging nabij alle dagelijkse voorzieningen is dit een ideale woning voor wie zorgeloos wil wonen. Hier voelt u zich direct thuis!

Wij nodigen u graag uit om deze woning tijdens een bezichtiging zelf te komen ervaren. Neem gerust contact met ons op voor het plannen van een afspraak, wij leiden u met plezier rond.

Kenmerken